市川市原木3丁目新築戸建 千葉県市川市原木3丁目|5,999万円の新築一戸建て|リロの売買
| 価格 | 5,999万円 ![]() |
||||
|---|---|---|---|---|---|
| 所在地 | 千葉県市川市原木3丁目
この地域周辺の物件を見る |
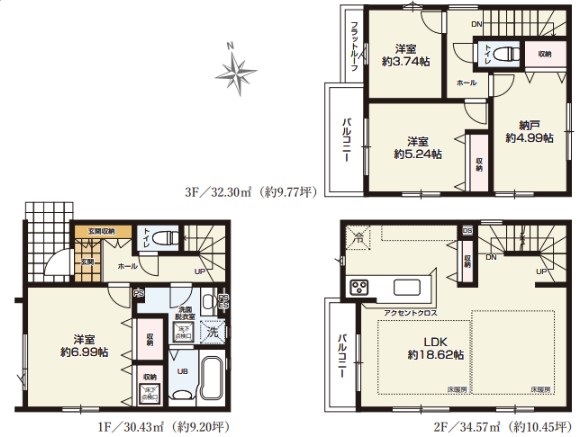
土地面積 | 59.95m² (公簿) (18.13坪) | 建物面積 | 97.3u |
| 築年月 | 2026年6月築 | 間取り | 3SLDK (-) | ||
| 交通 |
JR総武線 西船橋 徒歩15分
東京メトロ東西線 原木中山 徒歩10分 |
||||
| 特徴 |
|
|---|---|
| セールスコメント | - |
| 採光面 | - | 構造/階数 | 木造/地上3階建 |
|---|---|---|---|
| 建ぺい率 | -(%) | 容積率 | -(%) |
| 駐車場 | 有 | 現況/引渡し | 未完成/2026年7月中旬 |
| 土地権利 | - | 私道負担面積 | あり 12.2m² |
| 接道状況 | 接道: 北 私道 道路幅: 4.5m 接道: 西 私道 道路幅: 6m |
用途地域 |
準工業地域
|
| セットバック | - | 法令上の制限 | 第二種高度地区 |
| 地目 | 宅地 | 地勢 | |
| 建築確認番号 | 第KBI-YKH26-10-0271号 | 都市計画 | 市街化区域 |
| 取引態様 | 専任媒介 | ||
| 情報更新日 | 2026年04月04日 | 次回更新日 | 2026年04月18日 |
| 小学校区 | 市川市立二俣小学校 (千葉県市川市) この学区の他の物件を見る |
中学校区 | 高谷中学校 (千葉県市川市) この学区の他の物件を見る |
|---|
| 価格 | 万円 | ||
|---|---|---|---|
| 年利率 | % |
||
| ボーナス払い | 返済年数 | ||
| 頭金 | 直接入力する | 万円 | |

毎月のご返済額 |
ボーナス(×年2回) |
物件価格5,999万円 |
JR・東京メトロ・東葉高速鉄道等5路線が利用可能!
2階がLDKの3階建て新築住宅